109 967 ₽/м²
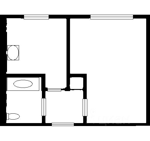
Разумный торг! Предлагаем Вашему вниманию отличную 1-комнатную квартиру. Общая площадь квартиры 30 кв. м. Кухня 6 кв. м. Санузел совмещён, в современном кафеле, установлен бойлер. Квартира светлая, тёплая, уютная, чистая! Расположена на третьем этаже девятиэтажного кирпичного дома. Состояние отличное, заезжай и живи! Есть общий большой балкон. Наша квартира разделена на две комнаты, хороший вариант для молодой семьи с ребёнком. В шаговой доступности есть всё необходимое для комфортной жизни: сетевые магазины, детские сады, школы, Сбербанк, почта, парк, Кинотеатр, до вокзала 10 минут на автобусе, в семи минутах ходьбы станция ж/д Крутое, Горьковское направление. В нашем городе протекает прекрасная речка Клязьма, большая, чистая. Для любителей половить рыбу изумительное место, также есть зона отдыха где Вы сможете искупаться и отдохнуть. Недалеко Вас порадует смешанный лес, грибы и ягоды в нём всегда наберёте. Звоните и приезжайте, всё покажем и расскажем! Просмотр по договорённости. Продается 1-комнатная квартира до 10 млн. рублей в Орехово-Зуево.



















































































